Spring Meadows Development

Introduction

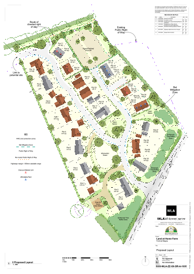
This page holds information and documents relating to the new housing development on land at Home Farm, South Street in Fontmell Magna.  The development is called Spring Meadows, and will comprise 30 new dwellings of which 12 will be affordable homes.  The developer is Pennyfarthing Homes based in New Milton, Hampshire.

Additional homes in Fontmell Magna were a requirement of the North Dorset Local Plan covering the period 2011-31.  Fontmell Magna was designated a sustainable village with a proportionate requirement of up to 40 new homes under the plan.  In 2016 a working group was formed in Fontmell to prepare a Neighbourhood Plan to influence where in the village and wider parish these additional homes should be built.  The resulting Neighbourhood Plan was approved overwhelmingly by residents in a referendum in November 2018, with 91.5% voting in favour, and was made part of the Local Plan on 28th November 2018.  

In the Neighbourhood Plan a site on land at Home Farm South Street was allocated for a low-density development of 30 homes.  Pennyfarthing Homes received planning permission in January 2022 to build out this site in accordance with the Neighbourhood Plan policies.  The development will include a School Drop-Off area in the north corner, for parents bringing their children to the school via the footpath leading to West Street; it's designed to relieve the traffic congestion in West Street at school drop-off and pick-up times.

Construction work is expected to start in late February and is expected to last for approximately 12 months. 

 

 

Spring Meadows Site Plan